2,44 kr
1,96 kr
63,03 kr
50,43 kr
Kozza KB5100 – fransk balkong aluminium H1100 mm, glas 16–17,52 mm, matt anodiserad
produkt otillgänglig
lägg till i önskelista
Beskrivning
Kozza KB5100 – fransk balkong aluminium H1100 mm, glas 16–17,52 mm, matt anodiserad

Kozza KB5100 är ett komplett fransk balkong-set avsett för montering direkt på fönsterram. Det plana systemet, tillverkat av anodiserad aluminium med matt anodiserad yta, kombinerar minimalistisk design med hög hållfasthet bekräftad av tester. Tack vare den stora glasytan med tjocklek 16–17,52 mm säkerställer den maximalt dagsljusinsläpp samtidigt som den fungerar som en estetisk och säker skyddsbarriär.
Idealisk lösning för installationsföretag som genomför moderniseringsprojekt, flerfamiljshus och enfamiljshus — överallt där klassisk balkong är omöjlig eller oekonomisk. Färdiga monteringshål och komplett utrustning för setet gör det möjligt att slutföra monteringen snabbt, utan ytterligare beställningar och specialverktyg.
Teknisk specifikation
- Tillverkare: Kozza
- Serie: KB5100
- System: platt
- Fästning: till fönster
- Material: anodiserad aluminium
- Yta: matt anodiserad
- Glasstjocklek: 16–17,52 mm
- Maximal glasbredd: 1600 mm
- Maximal glashöjd (H): 1100 mm
- Profilhöjd: H + 15 mm (det vill säga 1115 mm)
- Satsvikt: 4,8 kg
- EAN: 5903313207461
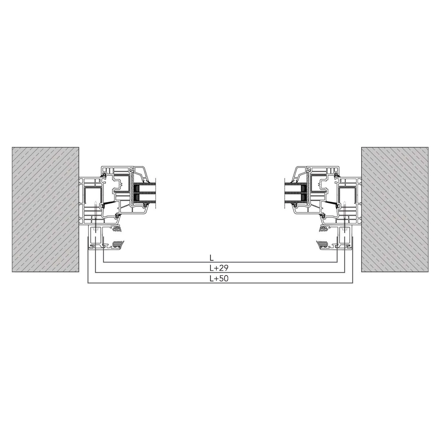
Monteringsmått
- Ljusöppning mellan profiler (glasbredd): L
- Centrumavstånd fästningar: L + 29 mm
- Total yttre bredd: L + 50 mm
- Övre avstånd (profil–glas): 6,5 mm
- Nedre avstånd (profil–glas): 8,5 mm
Setets innehåll

Setet innehåller allt som behövs för fullständig montering — utan behov av att köpa ytterligare komponenter:
- Två aluminiumprofiler med fabriksberedda monteringshål
- Skärmskydd (profilskyddslistor)
- Glastätning (gummi, dedikerad)
- Ändproppar
Precist placerade hål i profilerna eliminerar behovet av borrning på byggplatsen, vilket förkortar installationstiden och minimerar risken för fel. För installationsteam innebär detta tidsbesparingar och högre kvalitet på slutresultatet.
Placering av monteringshål (H = 1100 mm)
| Zon | Avstånd (mm) |
|---|---|
| A | 50 |
| B | 166 |
| C | 166 |
| D | 167 |
| E | 167 |
| F | 167 |
| G | 167 |
Tekniska ritningar — monteringssektion och mått



Tillämpning och montering
Fransk balkong Kozza KB5100 fungerar överallt där begränsat utrymme eller konstruktionsförhållanden utesluter montering av traditionell balkong — på högre våningar i flerfamiljshus, i moderna enfamiljshus samt vid renovering av befintliga byggnader. Monteringen kräver inte väsentliga ingrepp i byggnadens konstruktion, vilket gör den till en problemfri lösning både vid nybyggnation och modernisering.
Realiseringar — utseende efter montering


Konstruktionen bekräftad av hållfasthets- och vindbelastningstest garanterar mångårig komfort och säkerhet i användning. Den minimalistiska aluminiumprofilen med matt anodiserad yta är korrosionsbeständig och tål väderförhållanden, vilket bevarar det estetiska utseendet under många års drift.
Tekniska data
| Material | Aluminium |
Säkerhet
Alla recensioner (positiva och negativa) visas, enligt plattformens antalsbegränsning. Vi kontrollerar att de kommer från kunder som har köpt produkten. Läs mer på vår kommentarpolicies sida.